HOME
ADMIN
드림하우징
인사말
조직도/연혁
오시는길
목조주택
목조주택
이동식주택
이동식주택
사각정자
사각정자
인테리어
인테리어
실시간견적
실시간견적
문의하기
문의확인
시공갤러리
시공갤러리
커뮤니티
공지사항
자유게시판
Q&A
시공후기
목조주택
목조주택 > 목조주택
목조주택
목조주택
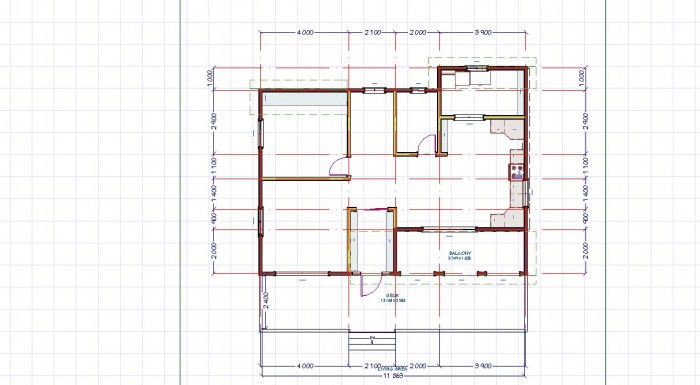
공주 신풍면에 시공할 목조주택 53평
덧글
0
|
조회
366
|
2016-05-20 00:00:00
관리자
Untitled 1.jpg
Untitled 2.jpg
Untitled 3.jpg
Untitled 4.jpg
Untitled 5.jpg
Untitled 6.jpg
Untitled 7.jpg
Untitled 8.jpg
Untitled 9.jpg
Untitled 10.jpg
공지사항
상담방법 공지.....
2015.03.12